Módulo para oficina
Descubra una nueva forma de trabajar: Nuestros módulos de oficina ofrecen espacios funcionales, modernos y adaptables para necesidades temporales o permanentes. Los diseños presentados pueden personalizarse, conectarse entre sí o apilarse hasta 3 niveles: ideales para oficinas individuales, ampliaciones corporativas o edificios administrativos completos.
MÓDULO PARA OFICINA
para áreas comerciales de corto, medio y largo plazo
Detalles
- Vida útil: 15 / 25 / 35 años
- A × L × AT: 3.00m × 6.00m × 2.84m
- 18 m²
Colores
- Clásico: blanco
- Personalizable
Varias distribuciones disponibles para diferentes usos
- Oficinas temporales en obras
- Espacios de trabajo para CoWorking o Startups
- Oficinas para eventos o exhibiciones
- Oficinas para empresas
- Administraciones para municipios y gobierno

Oficina Estándar
Artículo
MB-O-001
Detalles
- Superficie: 18 m²
- A × L × AT: 3.00m × 6.00m × 2.84m
- Vida útil: 15 / 25 / 35 años
Más detalles
Equipo incluido
- 1x puerta exterior con cerradura de seguridad
- 2x ventanas con aislante
- Instalación eléctrica
- 3x Luces LED
- Enchufes e interruptores de luz
- Aire acondicionado
Colores para exterior
- Clásico: Blanco
- Personalizable

Oficina Estándar con medio baño
Artículo
MB-O-002
Detalles
- Superficie: 18 m²
- A × L × AT: 3.00m × 6.00m × 2.84m
- Vida útil: 15 / 25 / 35 años
Más detalles
Equipo incluido
- 1x puerta exterior con cerradura de seguridad
- 2x puertas interiores
- 2x ventanas con aislante
- Instalación eléctrica
- 4x Luces LED
- Enchufes e interruptores de luz
- Medio baño
- Aire acondicionado
Colores para exterior
- Clásico: Blanco
- Personalizable

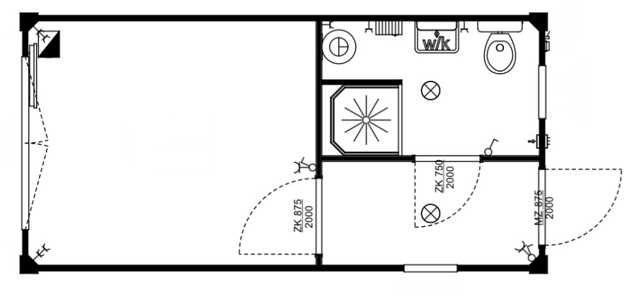
Oficina Estándar con baño completo
Artículo
MB-O-003
Detalles
- Superficie: 18 m²
- A × L × AT: 3.00m × 6.00m × 2.84m
- Vida útil: 15 / 25 / 35 años
Más detalles
Equipo incluido
- 1x puerta exterior con cerradura de seguridad
- 2x puertas interiores
- 2x ventanas con aislante y persianas enrollables
- Instalación eléctrica
- 4x Luces LED
- Enchufes e interruptores de luz
- Baño completo
- Aire acondicionado
Colores para exterior
- Clásico: Blanco
- Personalizable
Oficina Estándar con medio baño y pasillo
Artículo
MB-O-004
Detalles
- Superficie: 36 m²
- A × L × AT: 6.00m × 6.00m × 2.84m
- Vida útil: 15 / 25 / 35 años
Más detalles
Equipo incluido
- 1x puerta exterior con cerradura de seguridad
- 1x puerta interior
- 3x ventanas con aislante y persianas enrollables
- Instalación eléctrica
- 4x Luces LED
- Enchufes e interruptores de luz
- Medio baño
- 2x ACs
- Muebles
Colores para exterior
- Clásico: Blanco
- Personalizable

Muy flexible y adaptable
Un módulo - pero con varias opciones
¿Calefacción, aire acondicionado o paredes de cristal? Rentar o comprar un módulo de [MODU]BAU significa poder elegir. Gracias a su diseño, los espacios modulares de [MODU]BAU pueden adaptarse de forma variable a las condiciones de funcionamiento y a las necesidades del cliente. Los elementos de nuestros módulos se pueden instalar o cambiar en pocos minutos.
Luminoso y agradable
Ventanas estándar o persianas enrollables
Las amplias ventanas correderas o inclinables permiten el paso de mucha luz natural a los módulos de [MODU]BAU. Sin embargo, un exceso de luz solar también puede resultar molesto. Por eso, [MODU]BAU ofrece ventanas con persianas enrollables integradas, para una privacidad y protección solar fiables.


Eficiente
Lámparas LED
Los módulos de [MODU]BAU están equipados con modernas luces LED para una iluminación agradable y para ahorrar energía al mismo tiempo.
Listos para su uso inmediato
Enchufes
Los módulos de [MODU]BAU están listos para su uso inmediato, que incluye una fuente de alimentación fiable. Gracias a la instalación eléctrica todo funciona a la perfección desde el principio.

Dimensiones

Módulo para oficina de 20 pies
Ancho: 3.00 m
Longitud: 6.00 m
Altura: 2.84 m
Altura libre: 2.65 m
Estructura principal

Estructura de acero galvanizado
Se acumula hasta 3 niveles
Aislamiento y protección contra incendios
Vida útil: 15 / 25 / 35 años
Cumple con certificación CE